home
Kontakt
Möchten Sie ein mit unseren Produkten realisiertes Projekt einreichen, haben Sie Fragen oder Anregungen? Melden Sie sich über portal@hoermann.de
Abo
Möchten Sie zukünftig alle PORTAL Ausgaben kostenfrei per Post erhalten? Registrieren Sie sich hier.
share
Technik

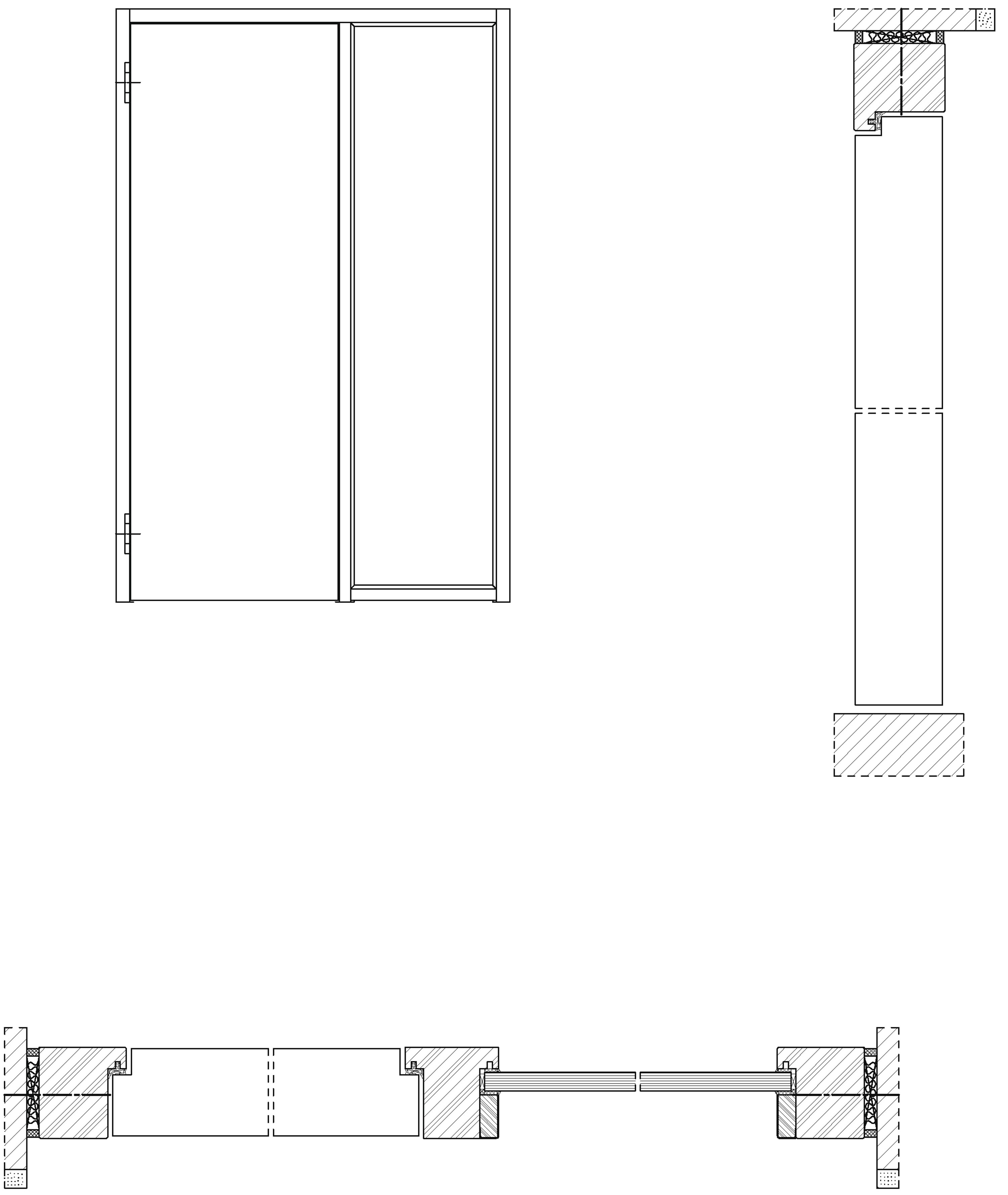
Schörghuber: Türen mit Seitenteil

Modernes Design und hohe Funktionalität

Anwendungsbereiche: Türen mit Glas-Seitenteilen vereinen modernes Design und hohe Funktionalität. Die Glasflächen vergrößern den Durchgang optisch, bringen Licht in den Raum und schaffen ein offenes, einladendes Ambiente. Für zusätzliche Sicherheit können die Türen mit Brand- und Rauchschutz ausgestattet werden. Optionaler Schallschutz mit einem Schalldämmwert von bis zu Rw = 46 Dezibel sorgt für Ruhe und Privatsphäre – sowohl im Wohnbau als auch in stark frequentierten Objektbereichen wie Hotels, Kindergärten oder Verwaltungsgebäuden. Ein weiterer Vorteil: Die Türen sind auf Wunsch barrierefrei geprüft. Dank durchdachter Konstruktion lassen sie sich leicht bedienen und sind auch für Menschen mit eingeschränkter Mobilität geeignet. Hochwertige Materialien und individuelle Designoptionen für Zargen und Oberflächen machen Türen mit Glas-Seitenteilen zu einer Lösung, die Ästhetik, Komfort und Sicherheit verbindet.

Produkt: Türen aus Holzwerkstoff mit Seitenteilen Ausführung: Türen 1-flügelig, 2-flügelig, optional mit Oberlicht oder Oberblende, Lichtausschnitt, Seitenteil 1-seitig oder 2-seitig Einbau in: Mauerwerk, Beton, Porenbeton, Leichtbauwand Zargen: Alle Holz- und Stahlzargen aus dem Schörghuber Programm Funktionen: Brandschutz T30, Rauchschutz, Schallschutz Rw = 32, 37, 42, 46 dB, Barrierefrei Zusatzausstattung: Verdeckt liegende Bänder, verdeckt liegende Türschließer, E-Öffner, Magnet- und Riegelkontakt, Fluchttüröffner, Sperrelement, automatische Drehflügelantriebe

Seitenteile aus Glas vergrößern den Durchgang optisch und sorgen für Transparenz.
Zudem kann natürliches Licht ins Innere des Gebäudes gelangen.
alle Themen
keyboard_arrow_up
News
Kataloge
Mediacenter
Texte / CAD / BIM
Architektenberatung