home
Kontakt
Möchten Sie ein mit unseren Produkten realisiertes Projekt einreichen, haben Sie Fragen oder Anregungen? Melden Sie sich über portal@hoermann.de
Abo
Möchten Sie zukünftig alle PORTAL Ausgaben kostenfrei per Post erhalten? Registrieren Sie sich hier.
share
Gedreht

The Spin in Frankfurt

von Hadi Teherani Architects

Es gab Zeiten, da strebten hohe Häuser ganz einfach nur nach oben. Und jedes Detail war dem Fetisch der Vertikalen untergeordnet. „The Spin“ von Hadi Teherani steht nun jedoch stellvertretend für eine neue Generation von Hoch­häusern. Es sind Türme, die einer neuen gesellschaftlichen Realität die geeignete Form geben.


Standort: Güterplatz 1, Frankfurt am Main, DE
Architekt: Hadi Teherani Architects, Hamburg, DE
Fertigstellung: 2023
Schörghuber Produkte: T30 Brand-/Rauchschutz Schleusentüren, Vollspantüren, T30 Brandschutztüren mit Schallschutz Rw = 32, 37 dB, Schallschutztüren Rw = 32 dB, Nassraumtüren, Feuchtraumtüren, T30 Brandschutztüren mit Schallschutz Rw = 42 dB, T30 Brand-/Rauchschutztür Access mit Schallschutz Rw = 42 dB (mit nur einer Dichtungsebene), T30 Brandschutztüren mit Schallschutz Rw = 48 dB, T90 Brandschutztüren, T30 Brand-/Rauchschutztüren mit Feuchtraumeignung, Feuchtraumtüren, Brandschutztüren mit Schallschutz Rw = 46 dB, Schallschutztüren Rw = 37 dB, Rauchschutztüren, Schallschutztüren mit Nassraumeignung, Faltstockzargen, Faltstockzarge mit Feuchteschutz an Zargenunterkante
Hörmann Produkte: stumpfeinschlagende Stahl-Objekttüren STS in Stahl- und Edelstahlausführung STS30-1, STS30-2, STS90-1, STS90-2, STSMZ-1, STSMZ-2; Stahl-Objekttüren H3-1 OD, H3-2 OD, H16-1 OD, D65-1 OD; 2-geteilte Stahlumfassungszarge zum nachträglichen Einbau


Hotel und Büros haben separate Eingänge.

In Frankfurt war es der Omniturm von Bjarke Ingels Group, der als erster mit seiner seltsam eingeschnürt scheinenden Taille die Skyline „Mainhattens“ spektakulär ergänzte. Nach einem Drittel der Geschosse verliert der Turm scheinbar die Orientierung. Er windet und dreht sich, ehe er zum Ende hin wieder zu alter Ordnung findet. „The Spin“ von Hadi Teherani beginnt mit einem Sockel aus verspringenden Etagen, geht in einen Schaft aus ordentlich übereinander gestapelten Regelgeschossen über und verliert seine Contenance dann erst wieder im oberen Drittel beim Kapitell. Die Etagen werden dort verschoben, sie kragen über oder bilden Einker­bungen, um Platz für Terrassen zu schaffen.

Selbstzweifel
Diese Hochhäuser der neuen Generation – und vorneweg „The Spin“ – scheinen den gesellschaftlichen Wandel mit baulichen Mitteln abzubilden. Als in Frankfurt in den späten 1970er-Jahren die beiden spiegelnden Glastürme „Soll und Haben“ der Deutschen Bank entstanden, da herrschte noch ein glasklarer, vor Selbstbewusstsein strotzender Kapitalismus. Der Messeturm von Helmut Jahn endete in den 1980er-Jahren ganz postmodern-amerikanisch in einer pyramidalen Spitze. Und als in den 1990er-Jahren die Commerzbank 289 Meter Höhe erreichte, standen die integrierten Gartengeschosse für ein neu entdecktes grünes Verantwortungsgefühl. Doch seitdem die westliche Welt von Selbstzweifeln geplagt und von neuen Mächten bedroht wird, scheint diese klare Richtung verloren gegangen. 

Hadi Teherani selbst sieht in seinem „The Spin“ ein „Wechsel­­spiel aus strengen und zueinander versetzten Schich­tungen“ und die „Metapher der vertikalen Stadt“. In der Horizon­talen zu Füßen seines Turms kennt die Stadt tat­sächlich schon lange keine klare Richtung mehr. Nicht nur Frankfurt ist ein höchst heterogenes Geflecht verschiedenster Wirtschafts­zonen und Milieus. „The Spin“ steht zudem an einer der wichtigsten Schnittstellen der Stadt. Auf der einen Seite des Turms liegt das Gallusviertel, ein Stadtteil mit starken sozialen Unterschieden, und auf der anderen entstand und entsteht das neu erschlossene Europaviertel auf dem Areal des ehemaligen Hauptgüterbahnhofs als Oase der Besser­verdiener mit Parks und Shopping-Malls. 

Loos‘sche Tradition
Diese sozial hybride Stadt wird nun in einem 128 Meter hohen und eher funktional hybriden Hochhaus gespiegelt. In den Sockelgeschossen finden sich Lobbys, Veranstaltungs- und Konferenzräume, der Wellnessbereich und ein Restaurant. Darüber kommen die 18 Geschosse eines 4-Sterne-Hotels. Das letzte Drittel des Hochhauses bietet dann auf zehn Etagen rund 11.800 Quadratmeter Büroflächen an – ergänzt um größere und kleinere Terrassenflächen, die sich aus den Verschiebungen der Etagen gegeneinander ergeben. 

Wer mag, kann in dieser Dreiteilung des Turms auch den letzten Widerhall der klassischen antiken Säulenordnung erkennen. Ein Gestaltungsprinzip, das sich in drei Jahr­tausenden westlicher Architektur immer wiederfindet – und nicht zuletzt im ikonischen Entwurf von Adolf Loos für den Chicago Tribune Tower aus dem Jahr 1922. Er verwandelte bekanntlich den ganzen Zeitungsturm in eine antike Säule, stellte den gewaltigen, kannelierten Schaft auf eine Basis und krönte ihn mit einem dorischen Kapitell. 
Hadi Teherani steht mit „The Spin“ in Frankfurt durchaus in der Loos’schen Tradition, denn bei seinem Turm tat er Ähnliches und griff auf die Säulenordnung zurück. Auf die Basis-Geschosse folgt der Schaft, der vom Kapitell gekrönt wird. Eine bewährte Ästhetik – nur eben neu und zeitgemäß interpretiert.

Überragt wird der 128 Meter hohe Bau vom Nachbarn, dem 180 Meter hohen Grand Tower, den wir bereits in der PORTAL 51 vorgestellt haben.
Die Bar verspricht nicht nur Hotelgästen erstklassige Drinks.
Eine Treppe führt zu den Räumen im zweiten Obergeschoss: Dort können Gäste Konferenzräume buchen, sich im Spa erholen oder im Fitnessraum trainieren.
Neben dem Hotel ist die Anwaltskanzlei Arnecke Sibeth Dabelstein Mieter im "The Spin".
Die Räume der Kanzlei sind großzügig gestaltet mit farblichen Akzenten ...
... die sich in allen Räumen - wie hier einem Konferenzraum - wiederfinden.
Mehr als eine Teeküche: Für das leibliche Wohl ist in der gut ausgestatteten Küche gesorgt.

Hörmann Expertise:
Edelstahltüren in der Gastronomie

Zwei Drittel des Hochhauses „The Spin“ nutzt das NH Collection Hotel. In den unteren zwei Etagen befinden sich mit der Lobby, dem Restaurant und einer Bar zentrale Bereiche für die Gäste. Besonders die gastronomisch genutzten Räume erforderten größte Sorgfalt in der Planung, denn hier treffen extreme Bedingungen aufeinander: Hitze, Feuchtigkeit, aggressive Reinigungsmittel, hohe Beanspruchung und strenge Hygienevorschriften. Objekttüren STS/STU aus Edelstahl sind neben ihrer hochwertigen Optik genau für solche Anforderungen gemacht. Ihr größter Vorteil: Man kann sie leicht reinigen, sie rosten nicht und widerstehen selbst scharfen Reinigern, wie sie in Küchen oft verwendet werden. Für Sicherheit sorgen Feuer- und Rauchschutzvarianten, ergänzt durch selbstschließende Türschließer und robuste 3D-Bänder. Die vollflächig verklebte 62-mm-Verbundkonstruktion macht die Türblätter extrem verwindungssteif. Gleichzeitig erreicht die Konstruktion in Kombination mit passenden Zargen Schallschutzwerte von bis zu 42 Dezibel – der Küchenlärm bleibt also, wo er hingehört.

Standort: Güterplatz 1, Frankfurt am Main, DE
Bauherr: Groß & Partner GmbH, Frankfurt, DE
Eigentümer: SPIN Beteiligungs GmbH & Co. KG, Hannover, DE
Architekt: Hadi Teherani Architects, Hamburg, DE
BGF: 36.400 m²
Fertigstellung: 2023
Fotos: Laura Thiesbrummel, München, DE / Minor Hotels (S. 25, oben)
Verarbeiter: Jens Dunkel Glas- und Bauelemente GmbH, Burg, DE
Schörghuber Produkte: T30 Brand-/Rauchschutz Schleusentüren, Vollspantüren, T30 Brandschutztüren mit Schallschutz Rw = 32, 37 dB, Schallschutztüren Rw = 32 dB, Nassraumtüren, Feuchtraumtüren, T30 Brandschutztüren mit Schallschutz Rw = 42 dB, T30 Brand-/Rauchschutztür Access mit Schallschutz Rw = 42 dB (mit nur einer Dichtungsebene), T30 Brandschutztüren mit Schallschutz Rw = 48 dB, T90 Brandschutztüren, T30 Brand-/Rauchschutztüren mit Feuchtraumeignung, Feuchtraumtüren, Brandschutztüren mit Schallschutz Rw = 46 dB, Schallschutztüren Rw = 37 dB, Rauchschutztüren, Schallschutztüren mit Nassraumeignung, Faltstockzargen, Faltstockzarge mit Feuchteschutz an Zargenunterkante
Hörmann Produkte: stumpfeinschlagende Stahl-Objekttüren STS in Stahl- und Edelstahlausführung STS30-1, STS30-2, STS90-1, STS90-2, STSMZ-1, STSMZ-2; Stahl-Objekttüren H3-1 OD, H3-2 OD, H16-1 OD, D65-1 OD; 2-geteilte Stahlumfassungszarge zum nachträglichen Einbau

Automatische Schiebetüren sind in der Gastronomie nützlich: ...
... Sie öffnen schnell, nehmen keinen Platz weg und sind auch mit vollen Händen zu bedienen.
Schörghuber (Tür links) und Hörmann (Kassenautomat und Tür rechts) vereint.
Die Edelstahloberfläche macht es Keimen schwer, sich zu vermehren.
Lichtausschnitte verhindern Unfälle mit entgegenkommenden Menschen.
Sie ist leicht sauber zu halten und widersteht auch aggressiven Reinigungsmitteln.
Flächenbündige Türen führen in die Hotelzimmer.
Nicht flächenbündigt, aber trotzdem mit edlem Erscheinungsbild: doppelflügelige Türen zum Konferenzraum und Flur..
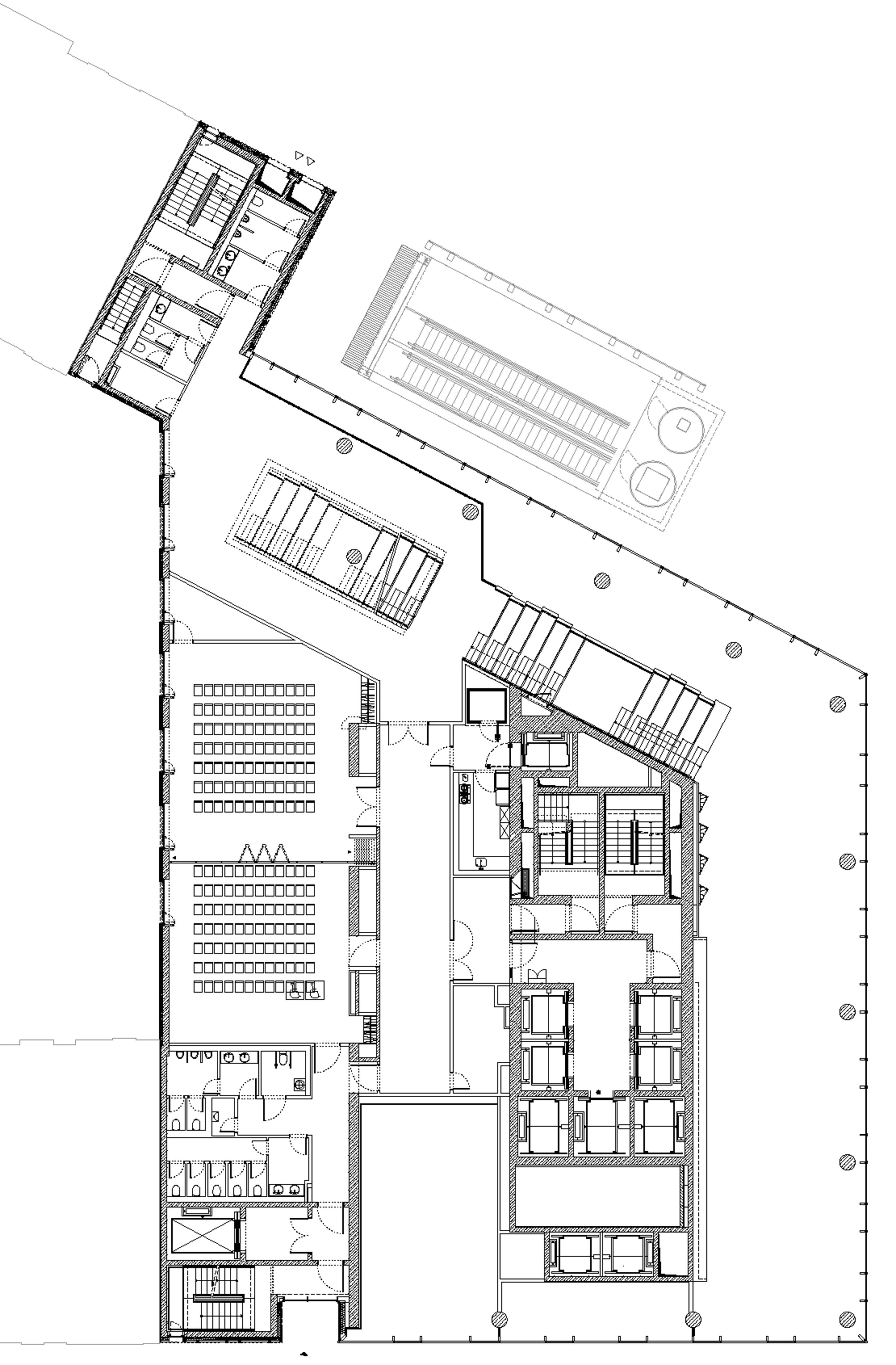
Grundriss Konferenzgeschoss
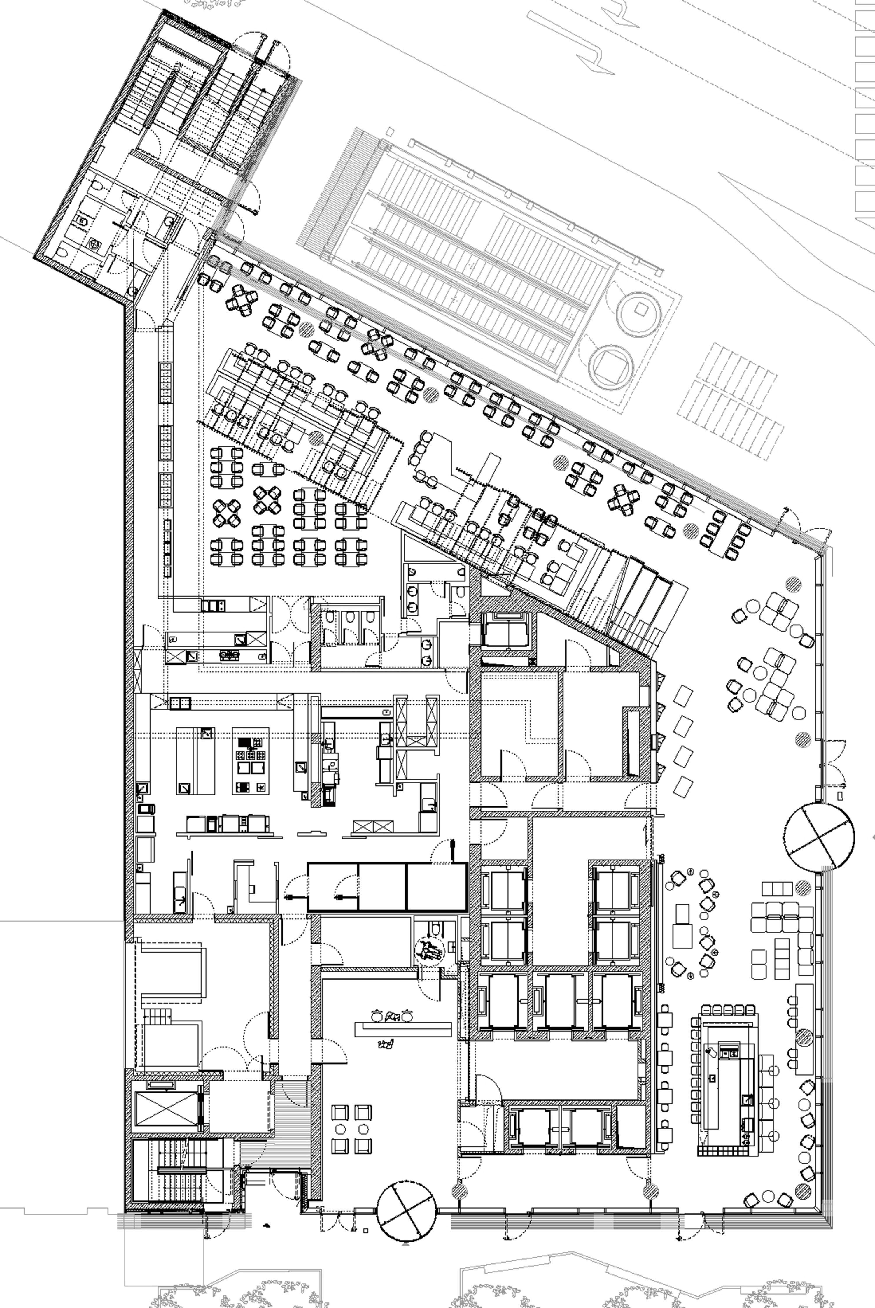
Grundriss Erdgeschoss
Schnitt
alle Themen
keyboard_arrow_up
News
Kataloge
Mediacenter
Texte / CAD / BIM
Architektenberatung