home
Kontakt
Möchten Sie ein mit unseren Produkten realisiertes Projekt einreichen, haben Sie Fragen oder Anregungen? Melden Sie sich über portal@hoermann.de
Abo
Möchten Sie zukünftig alle PORTAL Ausgaben kostenfrei per Post erhalten? Registrieren Sie sich hier.
share
Gesichert

Dynafit Speed Factory in Kiefersfelden

von Barozzi Veiga

Mit Sicherheit sofort verständlich ist die neue Markenarchitektur am Rande der A 93 – denn die Neigung der beiden Dächer entspricht dem Gefälle der Hänge, auf denen sich die Dynafit-Kundschaft bevorzugt ins Tal stürzt. 


Standort: Kaiserreich Straße 15, Kiefersfelden, DE
Architekt: Barozzi Veiga, Barcelona, ES 
Fertigstellung: 2024
Schörghuber Produkte: T30 Brandschutztüren 2-flügelig mit Oberblenden, T30 Brandschutztür mit Rauchschutz und Schallschutz Rw = 37 dB, Schallschutztüren Rw = 37 dB 1, teilweise mit Feuchteschutz, Vollspantüren, Faltstockzargen, Holzzargen mit Feuchteschutz an Zargenunterkante, Objekt-Holzfutterzarge
Hörmann Produkte: Stahl-Objekttüren H3 OD, D65 OD, Blockzarge B73


Der Farbton stimmt: Die Fassade soll Berghänge abstrahieren.
Lebendig: Die Schatten der Fassade werfen ein Muster auf den Boden.

Wer kennt schon die DIN 32912 oder die ÖNORM S 4610 f? Diese Normen bieten die Sicherheit, sich auf alpinen Skiern nur gemäß der eigenen Leistungsfähigkeit zu bewegen. Denn sie legen fest, was eine blaue, rote oder schwarze Piste ist. Und wer sich auf seinen Skiern halbwegs sicher fühlen möchte, dem sei angeraten, sich nach dieser Einteilung zu richten. In Zahlen ausgedrückt: Auf der roten Piste geht es in einem Winkel von maximal 40 Grad abwärts. Alles, was steiler ist, gehört zur Kategorie der schwarzen Pisten. Konsequenterweise hat das Headquarter des Skiausrüsters Dynafit in Kiefersfelden nahe der österreichischen Grenze ein passendes Dachgefälle – auch wenn sich die Marke auf Skitouren spezialisiert hat, die überwiegend in nicht ganz so steilem Terrain stattfinden.

Von Athleten für Athleten
In Kiefersfelden, direkt an der A 93 und ein paar hundert Me­ter entfernt von der Grenze zu Österreich, hat der Sport­arti­kel-Ausrüster sein Hauptquartier unter dem Namen „Dyna­fit Speed Factory“ errichtet. Unter dem Motto „Von Athleten für Athleten“ bietet Dynafit Ausrüstung für den Bergausdauersport im Winter wie im Sommer. Wo andere den Lift nutzen, da kämpfen sich alle jene mit Dynafit-Bin­dung an den Skiern noch selbst den steilsten Hang hinauf. Hier gibt es nicht nur die Produkte im Shop zu kaufen. In der Ski Factory kann man sich unter professioneller Anleitung individuelle Tourenski bauen. Nebenan rundet das Dynafit Bistro Bivac das Shopping-Erlebnis ab.
Diese Speed Factory ist deshalb der Prototyp einer Corporate Architecture, die der Kundschaft den Markenkern des Unter­nehmens vermitteln soll. In einem geladenen Wettbewerb setzte sich das spanische Büro Barozzi Veiga gegen illustre Konkurrenz durch. Darunter finden sich Namen wie Delugan Meissl, Peter Haimerl, Snøhetta oder Cino Zucchi.

Im Inneren ergeben sich vielfältige Blickbeziehungen und Einblicke in die Produktwelt Dynafits.
Betriebsgeheimnisse werden zwar nicht verraten, obwohl auch die offene Bürolandschaft Einblicke in die Welt von Dynafit gewährt.

Vielfältige Sichtbeziehungen
Die vom Architekturbüro mit dem Adjektiv „pyramidal“ be­nannten Baukörper setzen die alpine Landschaft zwischen Mang­fall und Wildem Kaiser baulich fort. Dass keine drei Kilometer entfernt die fast 2000 Meter hohe Pyramidenspitze in den Himmel ragt, mag Zufall sein – aber es passt. Tatsächlich sind es bei Dynafit zwei rechtwinklige Dreiecke, die gegeneinander gesetzt sind und deren Verschneidung die Eingangshalle bildet. Vielfältige Sichtbeziehungen eröffnen den Gästen Ein­blicke in den Shop und die Werkstätten des Herstellers. 
Die Außenhaut der Dynafit-Pyramiden aus kristallin erscheinenden und als Sonnenschutz wirkenden Metallschuppen erinnert an Gletscher. Im Inneren wurde auf alles verzichtet, was nicht der Leistung des Gebäudes entspricht. Sichtbeton, Glas und blankes Metall, sonst gibt es nichts – und es passt damit zur Markenbotschaft des Unternehmens, das der Kund­schaft mit „effizienten Systemen“ aus Schuhen, Bindungen, Skiern und Kleidung zu maximaler sportlicher Leistung verhelfen will. 

Auf der sicheren Seite
Die Kompromisslosigkeit von Dynafit spiegelt sich auch in der Architektur des Schwesterunternehmens Salewa wider. Ebenfalls zur Südtiroler Oberalp Gruppe gehörend hat der Sportartikler auf der Südseite der Alpen in Bozen und gleichfalls neben der Autobahn sein Hauptquartier in ebenso alpin inspirierter Architektur durch Cino Zucchi und Park Associati errichten lassen. Vergleichbar und dennoch völlig anders ist es der Dynafit-Zentrale durchaus ebenbürtig. 
Insgesamt vermittelt das Kiefersfeldener Gebäude der Kund­schaft die Sicherheit, mit Skiern, Schuhen oder Bin­dun­gen auf der „sicheren Seite“ der Ausrüstung zu sein – und dem Unter­nehmen gibt es die Sicherheit, dass diese Markenarchitektur in der Lage ist, die Markenbotschaft auch konsequent sichtbar zu machen.

Im Shop kann auf mehreren Ebenen alles gefunden werden, was das Skifahrerherz begehrt.

Hörmann Expertise:
Stahl-Objekttüren

Stahl-Objekttüren sieht man eher selten als Teil architektonischer Gestaltung. Zumeist fügen sie sich so unauffällig – oder im Gegenteil – so kontrastreich wie möglich dort ein, wo sie notwendig sind. Anders beim Hauptquartier des Sportartikel-Ausrüsters Dynafit. Hier führen sie als Fluchttüren in eine Art Laubengang hinter der geometrischen Fassade. Dort, wo je nach Lichteinfall die Schatten der Fassadenkonstruktion als ornamental-grafisches Muster auf die Wände fallen, sind die Stahl-Objekttüren farbgleich zur Wand eingelassen. Dadurch bilden sie eine Art Leinwand, auf der sich die Struktur der Fassade widerspiegelt. Einen leichten Kontrast bilden hingegen die Türen im Untergeschoss. Dort heben sie sich dezent von den Wänden aus Beton ab. Neben ihrer Funktion als Brandabschnittstür dienen sie in dieser Umgebung auch als Zugang zu den Nassräumen. Das sorgt für ein einheitliches Gesamtbild in den Verkehrsflächen. Ein weiterer Vorteil ist ihre Robustheit. Sie lassen sich leicht reinigen und sind widerstandsfähig gegen aggressive Putzmittel.

Standort: Kaiserreich Straße 15, Kiefersfelden, DE
Bauherr:
Dynafit, Mountain Experience Beteiligungs-Holding GmbH, Kiefersfelden, DE
Architekt:
Barozzi Veiga, Barcelona, ES 
Projektsteuerung:
Plan Team S.r.l., Bolzano, IT
Tragwerk:
Bergmeister Ingenieure, München, DE
Fassadenplanung:
knippershelbig GmbH, Stuttgart, DE
Bauphysik:
SPEKTRUM Bauphysik & Bauökologie GmbH, Dornbirn, AT
Brandschutz:
K33 Riedner Wagner Gerhardinger Architekten PartGmbB, München, DE
Haustechnik:
Stiefmüller Hohenauer & Partner GmbH, Kundl, AT
Lichtplanung:
Bartenbach GmbH, Wattens, AT
Baukosten:
30 Mio. €
Fertigstellung:
2024
Fotos:
Laura Thiesbrummel, München, DE
Verarbeiter (Schörghuber):
MMM Consulting GmbH, Grünwald, DE
S
chörghuber Produkte: T30 Brandschutztüren 2-flügelig mit Oberblenden, T30 Brandschutztür mit Rauchschutz und Schallschutz Rw = 37 dB, Schallschutztüren Rw = 37 dB 1, teilweise mit Feuchteschutz, Vollspantüren, Faltstockzargen, Holzzargen mit Feuchteschutz an Zargenunterkante, Objekt-Holzfutterzarge
Hörmann Produkte: Stahl-Objekttüren H3 OD, D65 OD, Blockzarge B73

Farblich harmonieren Fassade, Geländer, Türen und Wände perfekt miteinander.
Auch im Untergeschoss legen die Architekten Wert auf optische Homogenität ...
... – wie hier bei den Stahl-Objekttüren.
Stahlobjekttüren bilden den Zugang zu den Sanitärräumen.
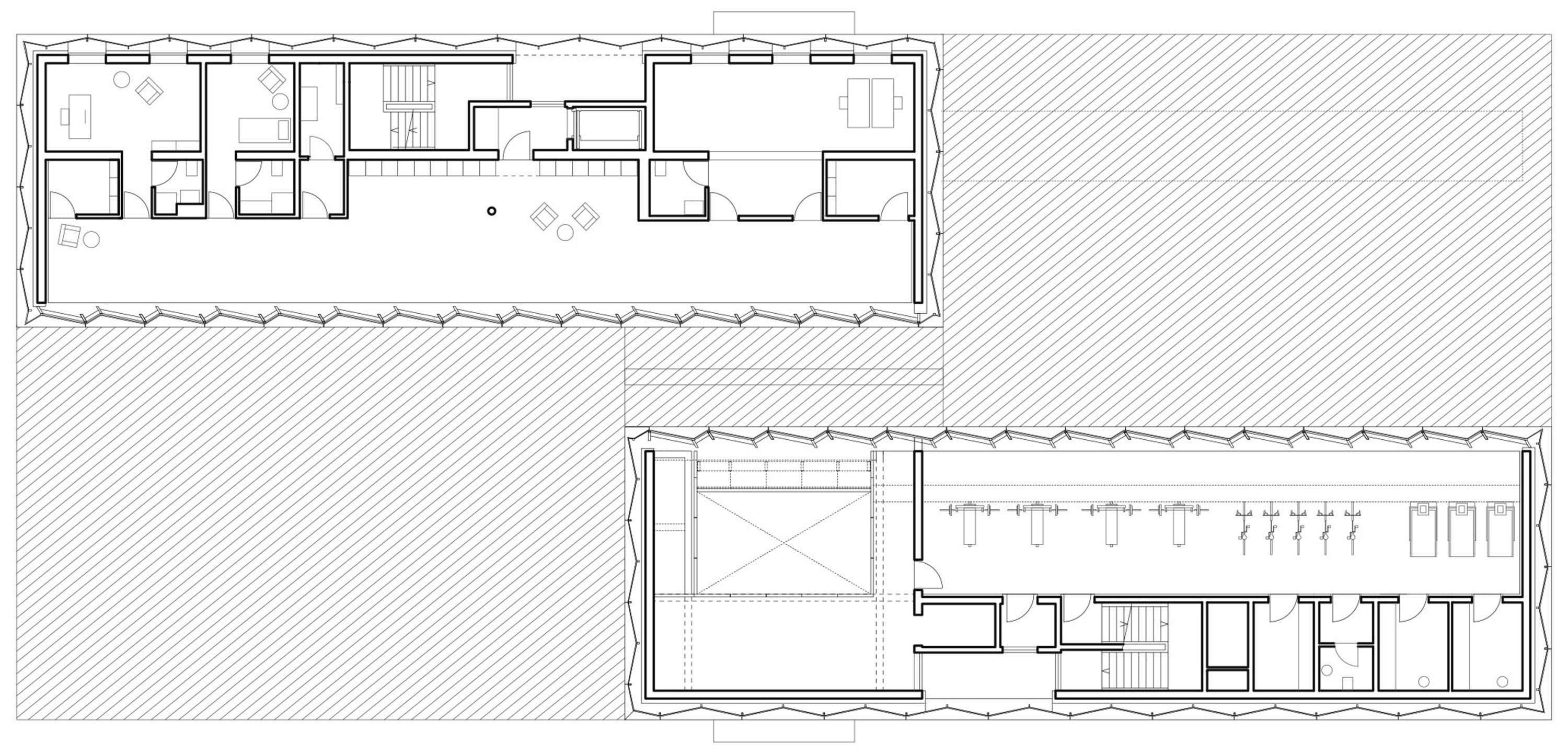
Grundriss 5. Obergeschoss
Grundriss 3. Obergeschoss
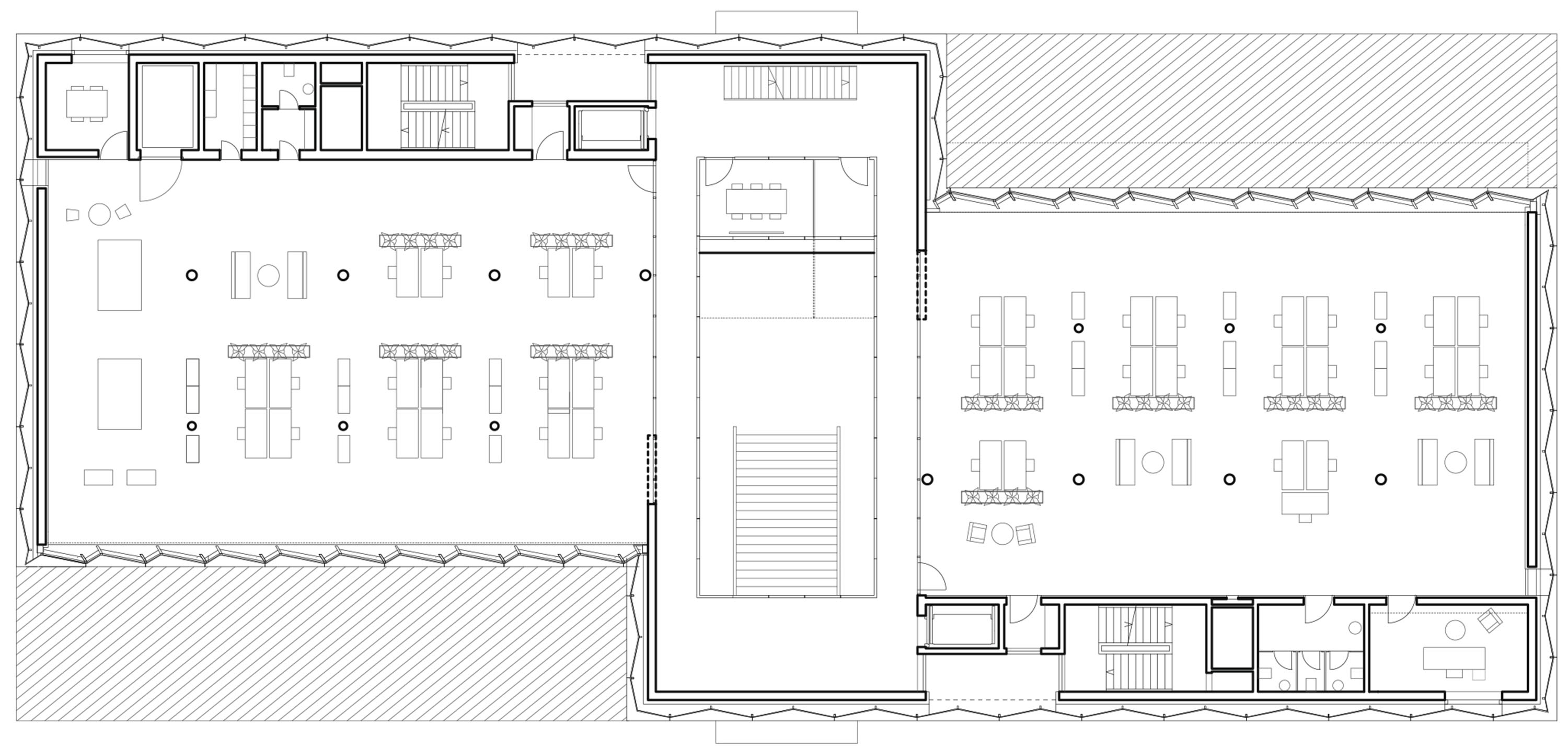
Grundriss 2. Obergeschoss
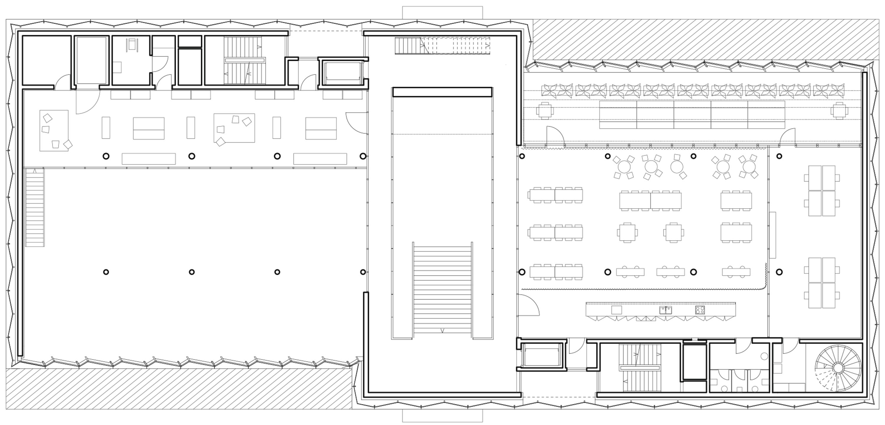
Grundriss 1. Obergeschoss
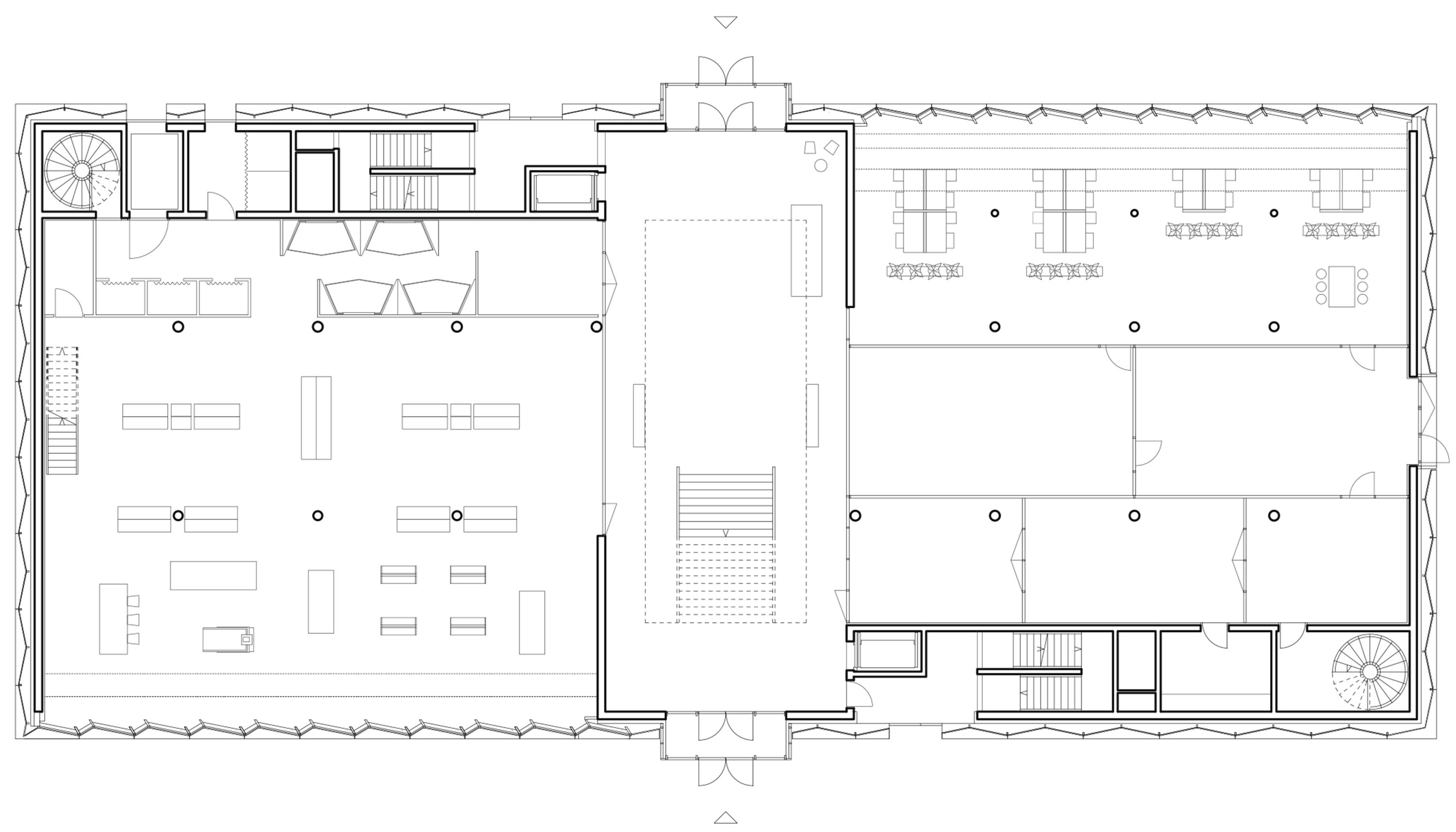
Grundriss Erdgeschoss
Schnitt
Schnitt
Lageplan
alle Themen
keyboard_arrow_up
News
Kataloge
Mediacenter
Texte / CAD / BIM
Architektenberatung