home
Kontakt
Möchten Sie ein mit unseren Produkten realisiertes Projekt einreichen, haben Sie Fragen oder Anregungen? Melden Sie sich über portal@hoermann.de
Abo
Möchten Sie zukünftig alle PORTAL Ausgaben kostenfrei per Post erhalten? Registrieren Sie sich hier.
share
Vorbildhaft

Volkstheater in München

von LRO Lederer Ragnarsdóttir Oei

Ein Volkstheater ist weder Staatsoper noch Komödiantenstadel – und deshalb architektonisch eine besondere Herausforderung. LRO Lederer Ragnarsdottir Oei nahmen sie in Zusammenarbeit mit der Firma Georg Reisch an, gewannen den europaweiten Wettbewerb, blieben exakt im Budget- und Zeitrahmen – und lieferten nicht nur deshalb ein vorbildhaftes Stück Baukultur ab.


Standort: Tumblingerstraße 27, München, DE
Architekt: LRO Lederer Ragnarsdóttir Oei, Stuttgart, DE
Fertigstellung: 2021
Schörghuber Produkte: T30 Brand-/Rauch-/Schallschutztüren Rw  = 32, 37 oder 42 dB, 1- und 2-flügelig, teilweise mit Oberblende, Schallschutztüren Rw = 32, 37 oder 42 dB, 1- und 2-flügelig, teilweise mit Oberblende, Vollspantüren, hochschalldämmende T30 Brandschutztüren mit Rw = 48 dB, T90 Brand-/Rauch-/Schallschutztüren mit Rw = 42 dB, T30 Brandschutz-Massivholzrahmentüren 1- und 2-flügelig, teilweise mit Glasseitenteil, T90 Brand-/Rauchschutztüren 1- und 2-flügelig, Rauchschutztüren teilweise mit Kämpfer und Glasoberlicht, Nassraumtüren, Schallschutz-Doppeltüranlagen mit Rw = 55 dB, Faltstockzargen, Massivholzstockzargen
Hörmann Produkte: Stahlumfassungszargen 2-geteilt in Laschen-Klemm-Befestigung


Strenge und Vielfältigkeit: Die Fassade ist nicht aufsehenerregend gestaltet, spielt aber auf hohem Niveau subtil mit Form und Proportion.

Gäbe es das Münchner Viehhofviertel nicht schon, dann müsste es erfunden werden. Denn rund um die verbliebenen Schlachthausanlagen, in denen immer noch Schweine und Rinder im Morgengrauen ihr Leben lassen, blüht ein vielfältiges urbanes Biotop, das leider um die unweigerlich kommende Gentrifizierung geradezu bettelt. Die Suppenküche für Bedürftige und das Veggie-Restaurant existieren neben dem altbayerischen „Stüberl“, in dem die verbliebenen Kopfschlächter am frühen Morgen ihr Frühstück aus Blut- und Leberwurst verzehren. Lastenfahrrad-Mütter radeln an Arbeitern vorbei. Sprayer beginnen ihr Tagwerk (das hier legalisiert ist), und im alternativen Containerdorf arbeiten Kreative aller Art. Zumindest noch bis 2027. Dann werden auf der Brache neue Wohnungen entstehen.

Ohne Attitüde
Inmitten des Schlachthausviertels entstand ein Theater für jene, die das Theater machen, denn der weitaus größte Teil eines solchen Bauwerks befindet sich hinter den drei Bühnen. Und es entstand ein Theater für jene, die es besuchen und lieben. Es entstand ein integrales Bauwerk, das denkmalgeschützte Teile des Viehhofs und die heterogene Bebauung des Umfelds miteinander versöhnt. Vor allem jedoch entstand ein Kulturgebäude, das ohne die Attitüde der Hochkultur auskommt, keinerlei Schwellenängste aufkommen lässt und dennoch ein richtiges Theater sein will. Für das Ensemble war es ein gewaltiger Schritt heraus aus der bislang genutzten Mehrzweckhalle in der Brienner Straße. Und wer sich dem neuen Volkstheater erstmals nähert, der fühlt sich spontan an die Berliner Schaubühne am Lehniner Platz, erinnert, die von Erich Mendelsohn ursprünglich als Kino und damit als Palast der Populärkultur entworfen wurde. Dass die denkmalgeschützten Schlachthäuser in Ziegel ausgeführt wurden, ist ein Glücksfall. Ermöglichten sie es den Architekten von LRO Lederer Ragnarsdóttir Oei doch, auch hier eines ihrer bevorzugten Materialien einzusetzen und das Quartier materialidentisch zu komplettieren. LRO fügten das Theaterquartier an einen alten Verwaltungstrakt des Schlachthofs an und schufen dahinter einen Innenhof zur gemeinsamen Erschließung des Theatercafés und des Foyers. Ein gewaltiger, flach überwölbter Torbogen aus Ziegeln funktioniert als perfekte Willkommensgeste und führt die Besucher von der Straße direkt zum Haupteingang. Es ist eine Übergangszone aus dem öffentlichen Raum ins Halbdunkel des Theaters.

Authentizität und Dauerhaftigkeit
Der Verzicht auf Mörtel in den Stoßfugen betont die Horizontalität des Ziegelmauerwerks, das in eleganten Schwüngen, eckigen Versätzen oder sorgsam entworfenen Details das Bauvolumen gliedert. Der 29 Meter hohe Bühnenturm ist mit einer Membran verkleidet und verliert seine dominante Monumentalität. Im Inneren wechselt die Materialität – doch nicht der Umgang mit den Werkstoffen. Auf das Eingangstor folgen die Türen zum Theater, deren großflächige Eichengriffe dasselbe Bild von Authentizität und Dauerhaftigkeit vermitteln. Im Inneren wird es dann goetheanisch bunt. Das eher schmale Foyer verteilt die Besucher, und im großen Saal, der sich als Black Box komplett den Aufführungsbedürfnissen unterordnet, taucht der gebrannte Ton der Ziegelfassade in Form von Tontöpfen wieder auf. An der Wand befestigt, befinden sich nicht die üblichen Geranien darin, sondern Leuchtmittel. Ob dies dem strikt eingehaltenen Budget geschuldet ist oder Arno Lederers Humor, ist gleichgültig. Derlei Details komplettieren das Bild einer grundehrlichen, bodenständigen und zugleich hocheleganten Architektur mit absolutem Vorbildcharakter.

Im großen Saal werden die zu Leuchten umfunktionierten Blumentöpfe zum Ornament.
In der großen Werkstatt werden die Bühnenbilder geschaffen.

Schörghuber Expertise:
250 hochwertige Spezialtüren

Wie wichtig die Gestaltung von Türen für ein herausragendes Projekt ist, kann exemplarisch am Volkstheater München festgemacht werden. Für das Projekt ließen die Architekten von LRO eine spezielle Türblattoberfläche erstellen und bemustern. Ergebnis sind Spezialtüren, die mit einem Echtholzfurnier aus Seekiefer zur Ausführung kamen. Die Oberfläche wurde nicht „naturbelassen“, sondern gebeizt und klar lackiert. Einige Türen entsprechen allerdings nicht diesem Bild: So gibt es Brandschutz-Massivholzrahmentüren mit einem großen Glasanteil sowohl im Türblatt als auch in den feststehenden Seitenteilen. Eine weitere Besonderheit sind zwei Doppeltüranlagen, mit der man hohe Schalldämmwerte von bis zu 60 Dezibel erreicht. Hier übernimmt eine dieser Anlagen zum Beispiel die Schallisolierung des Tonstudios mit bis zu 55 Dezibel. Es kamen teilweise sehr breite und hohe Türen zum Einsatz, beispielsweise eine zweiflügelige T90 Tür mit knapp 4 Metern Höhe. Viele Türen wurden zudem mit hochwertiger Technik ausgestattet: So erleichtern Motor- und Panikschlösser die Bedienung, Zugangskontrollen sorgen für Sicherheit im laufenden Betrieb.

Standort: Tumblingerstraße 27, München, DE
Bauherr: Landeshauptstadt München, DE
Nutzer: Münchner Volkstheater, DE
Architekt: LRO Lederer Ragnarsdóttir Oei, Stuttgart, DE
Generalübernehmer: Georg Reisch GmbH & Co. KG, Bad Saulgau, DE
Brutto-Grundfläche: 30.134 m²
Netto-Grundfläche: 24.432 m²
Brutto-Rauminhalt: 159.770 m³
Fertigstellung: 2021
Fotos: Laura Thiesbrummel, München, DE
Schörghuber Produkte: T30 Brand-/Rauch-/Schallschutztüren Rw  = 32, 37 oder 42 dB, 1- und 2-flügelig, teilweise mit Oberblende, Schallschutztüren Rw = 32, 37 oder 42 dB, 1- und 2-flügelig, teilweise mit Oberblende, Vollspantüren, hochschalldämmende T30 Brandschutztüren mit Rw = 48 dB, T90 Brand-/Rauch-/Schallschutztüren mit Rw = 42 dB, T30 Brandschutz-Massivholzrahmentüren 1- und 2-flügelig, teilweise mit Glasseitenteil, T90 Brand-/Rauchschutztüren 1- und 2-flügelig, Rauchschutztüren teilweise mit Kämpfer und Glasoberlicht, Nassraumtüren, Schallschutz-Doppeltüranlagen mit Rw = 55 dB, Faltstockzargen, Massivholzstockzargen
Hörmann Produkte: Stahlumfassungszargen 2-geteilt in Laschen-Klemm-Befestigung

Lüftungsauslässe sind gestalterisch in die Oberblende integriert.
Farb- und Formenspiel: Die Türen im Volkstheater passen sich perfekt in das Gestaltungskonzept ein.
Die dunklen Türen bilden einen deutlichen Kontrast zum hellen Sichtbeton.
Unauffälliger integriert sich dagegen diese Tür in die gleichfarbene Wand.
Großflächig verglaste Türen gewähren Sichtbeziehungen und sorgen für natürliches Licht auch in den innenliegenden Gebäudeabschnitten.
Einige Türen mit ungewöhnlicher Breite haben eine automatische Schließanlage.
Die Doppeltüranlage zum Tonstudio ...
... gewährleistet den Schallschutz.
Grundriss 3. Obergeschoss
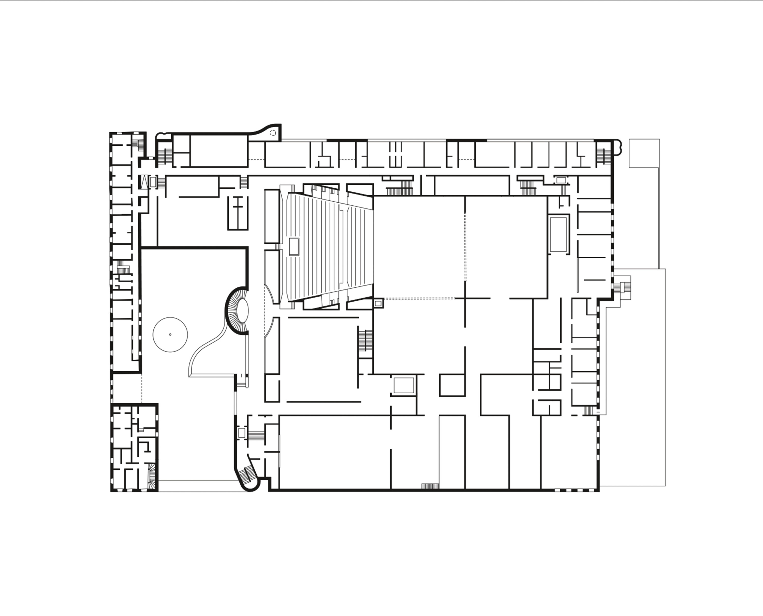
Grundriss 2. Obergeschoss
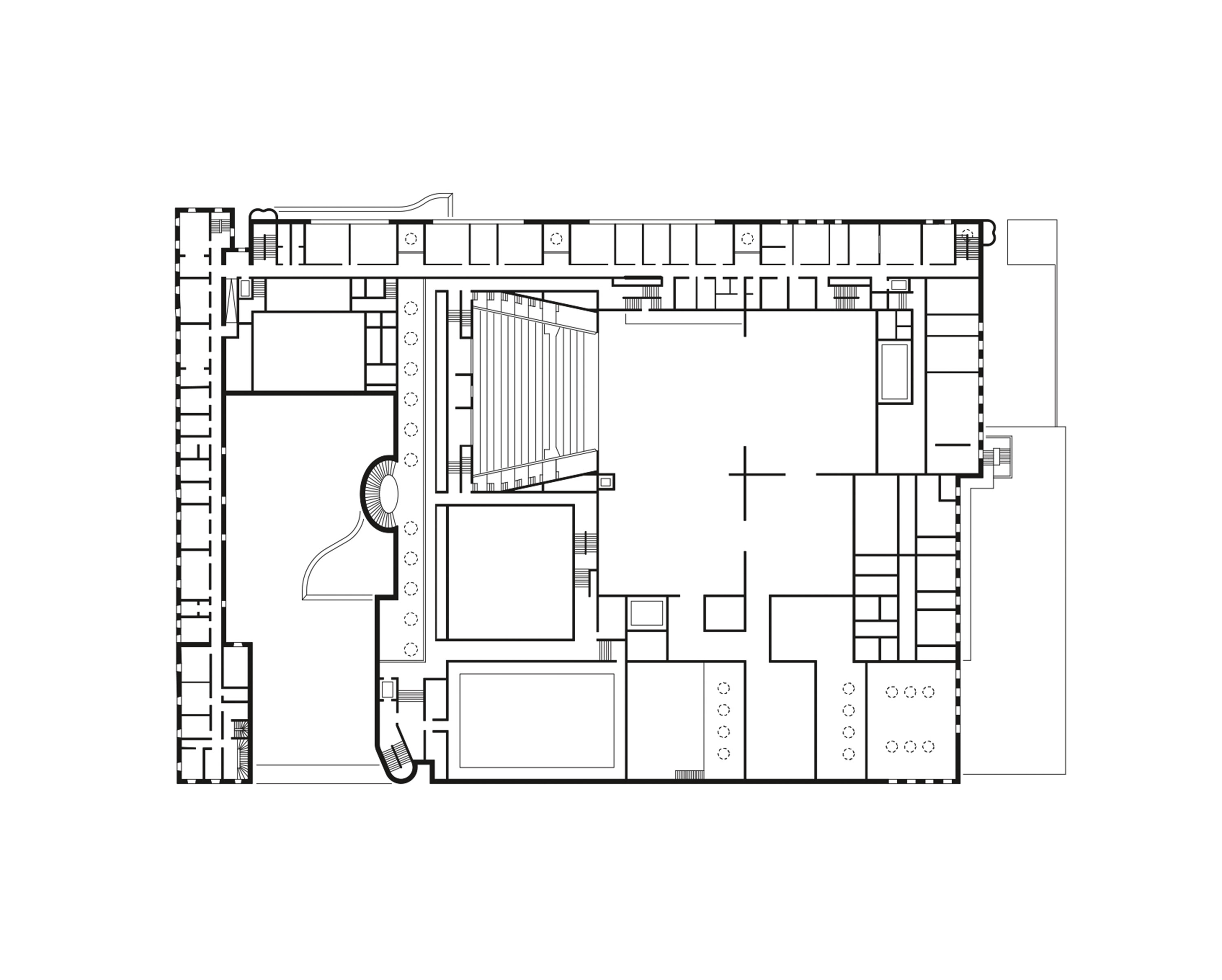
1. Obergeschoss
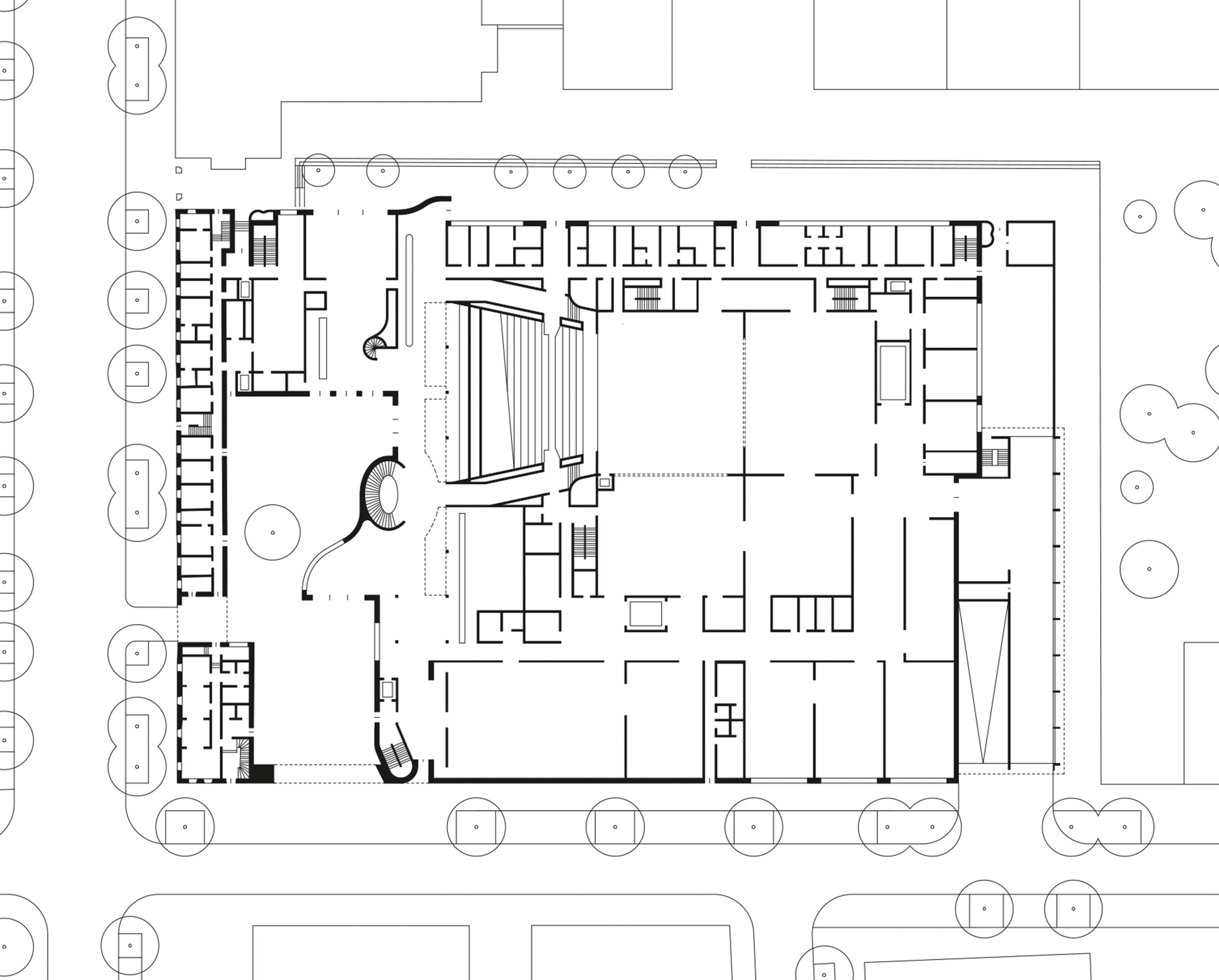
Grundriss Erdgeschoss
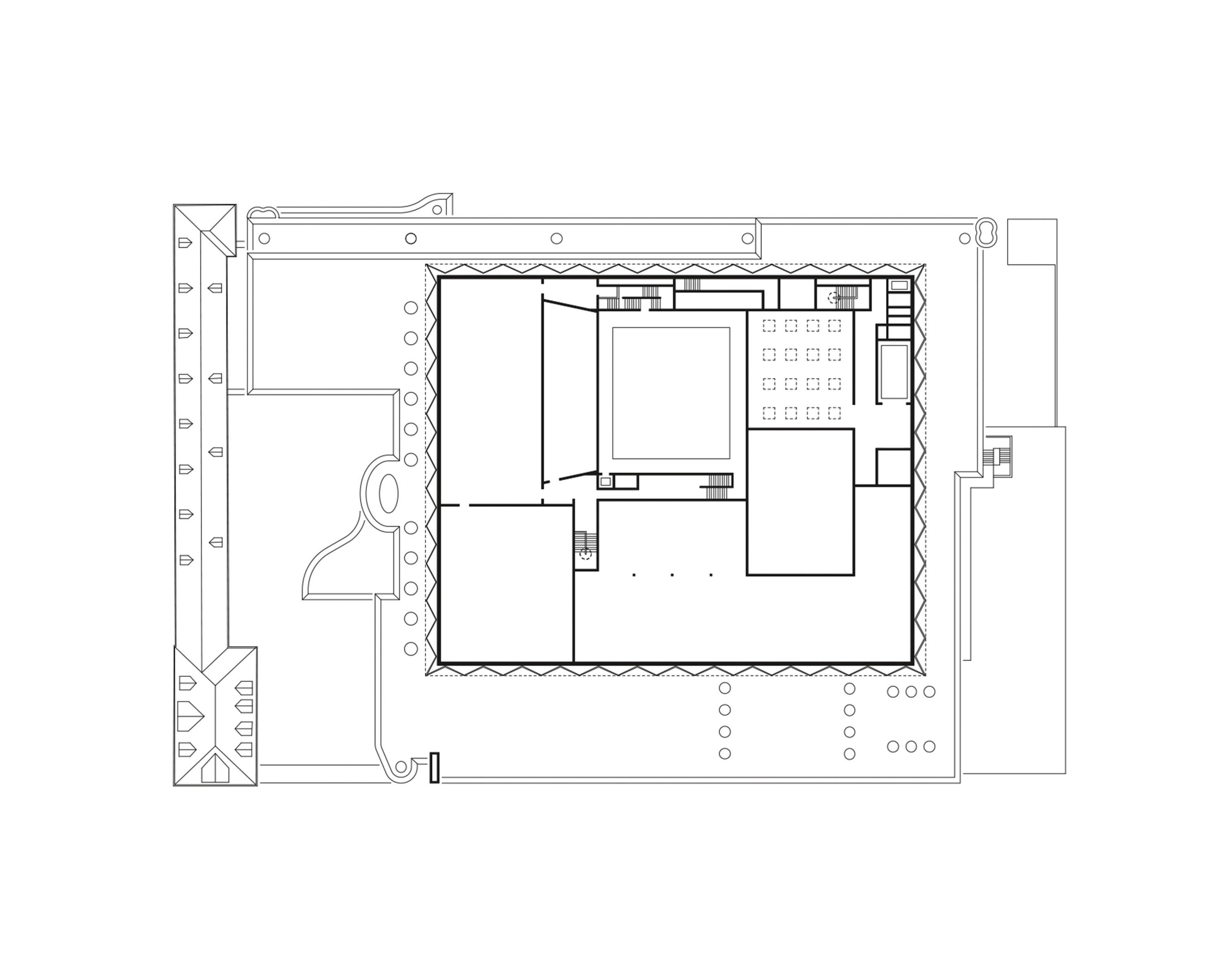
Schnitt
Lageplan
alle Themen
keyboard_arrow_up
News
Kataloge
Mediacenter
Texte / CAD / BIM
Architektenberatung