home
Kontakt
Möchten Sie ein mit unseren Produkten realisiertes Projekt einreichen, haben Sie Fragen oder Anregungen? Melden Sie sich über portal@hoermann.de
Abo
Möchten Sie zukünftig alle PORTAL Ausgaben kostenfrei per Post erhalten? Registrieren Sie sich hier.
share
Technik

Hörmann: Stahl-Objekttüren OD für Rechenzentren

Große Türen für große Server Racks

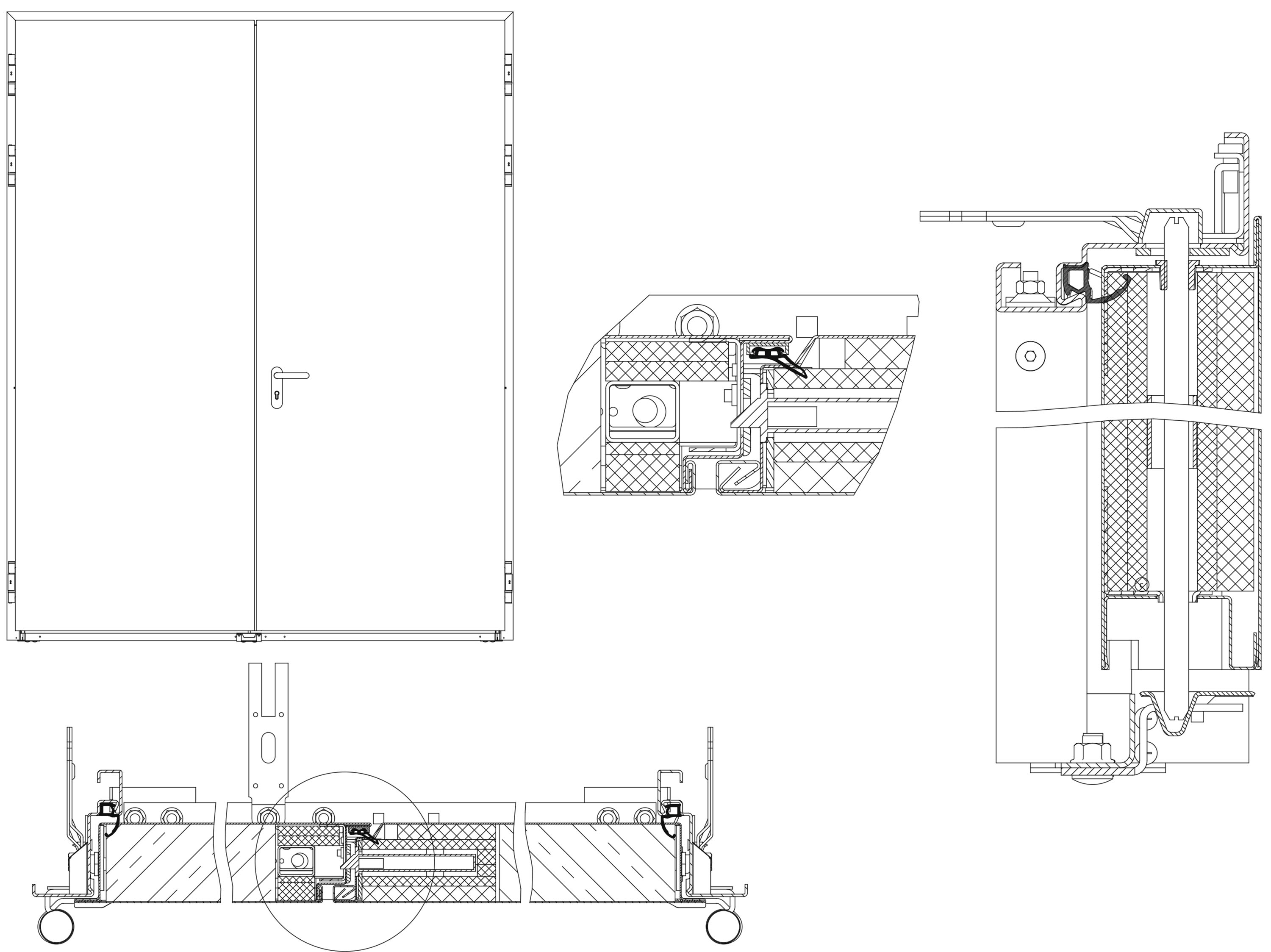
Anwendungsbereiche: Die Türblätter der Stahl-Objekttüren D65 OD, H3 OD und H16 OD für die Innenanwendung können auch mit einer Höhe von bis zu 3500 mm ausgeführt werden. Damit sind sie sehr gut für den Einsatz in Rechenzentren und deren Zugänge zu den Datenhallen geeignet. Denn dort werden immer größere Server Racks verbaut, um den steigenden Anforderungen an Rechenleistung und Speicherkapazität gerecht zu werden. Die Hörmann OD-Türen in Übergrößen mit Zulassung für Sonderwände sind in feuerhemmender T30 oder feuerbeständiger T90 Ausführung (mit Zulassung im Einzelfall) erhältlich und optional mit Rauchschutz verfügbar. Die verklebte, planebene Türkonstruktion mit Dünnfalz und die Türblattdicke von 65 mm sorgen für eine hohe Stabilität und Sicherheit. Überwachungsfunktionen werden durch die Verwendung von Sonderschlössern realisiert. Damit bietet Hörmann umfassende Türlösungen, die gezielt auf die hohen funktionalen Anforderungen von Rechenzentren abgestimmt sind. Darüber hinaus werden auch maßgeschneiderte Lösungen für alle anderen Bereiche des Gebäudes bereitgestellt, sodass alle Türen, Tore und Zufahrtskontrollsysteme wie Schrankenanlagen oder Poller aus einer Hand geliefert werden können. Das sorgt für eine effiziente Abwicklung des Bauvorhabens – inklusive Montage und Bauleitung – mit nur einem Ansprechpartner.

Produkt: Stahl-Objekttüren D65 OD, H3 OD und H16 OD mit BRM-Höhe bis zu 3500 mm Ausführung: 1- und 2-flügelig, verklebte, planebene Tür­kon­struktion mit Dünnfalz Größenbereich (B x H) D65 OD: 1-flügelig max. 1500 x 3500  mm; 2-flügelig max. 3000 x 3500 mm Größenbereich (B x H) H3 OD: 1-flügelig max. 1500 x 3400 mm; 2-flügelig max. 3000 x 3000 mm Größenbereich (B x H) H16 OD: 1-flügelig max. 1500 x 2750 mm; 2-flügelig max. 2500 x 2500 mm (mit Zulassung im Einzelfall) Türblattdicke: 65 mm Hauptfunktionen: Brandschutz T30, T90 Zusatzfunktionen: Rauchschutz RS, Schallschutz, Einbruch­hemmung Farben: RAL 9002 Grauweiß (Standard), 9 Vorzugs­farben, RAL nach Wahl, Metallfarben, NCS-Sonderfarben Einbau in: Zulassung für Sonderwände, Mauerwerk, Beton, Porenbeton, Mon­tage­wand F90A Montage: Dia­go­nal­befestigung, Laibungsmontage, Schraubmontage

Die verklebten Stahl-Objekttüren D65 OD, H3 OD und H16 OD sind in Höhen bis zu 3500 mm erhältlich und damit ideal für Rechenzentren geeignet.
Ansicht, Vertikal- und Horizontalschnitt sowie Detail.
alle Themen
keyboard_arrow_up
News
Kataloge
Mediacenter
Texte / CAD / BIM
Architektenberatung